Mái kính giếng trời tự động là giải pháp mà Sắt Mỹ Thuật HD giới thiệu để tối ưu thông gió, lấy sáng và an toàn cho công trình hiện đại. Với kính cường lực, khung nhôm, polycarbonate, hệ thống motor kéo, thanh ray và cảm biến thông minh, chúng tôi mang đến sản phẩm bền vững, báo giá minh bạch, dễ điều khiển bằng remote, nút bấm hay app điện thoại, phù hợp nhu cầu khách hàng tại Hà Nội và khắp thị trường Việt Nam.

Mái kính giếng trời tự động là gì? 6 Lợi ích vượt trội cho công trình hiện đại
Mái kính giếng trời tự động là một trong những giải pháp thông minh và cao cấp nhất thuộc danh mục mái kính sắt nghệ thuật. Sắt Mỹ Thuật HD mang đến sản phẩm kết hợp công nghệ, an toàn và giá trị thẩm mỹ cao, đáp ứng nhu cầu thông gió, ánh sáng và vận hành tiện lợi cho mọi công trình.

Giải mã khái niệm: Mái kính tự động & giếng trời thông minh
Trong bài viết này, chúng ta sẽ cùng giải mã chi tiết về khái niệm mái kính giếng trời tự động và giếng trời thông minh. Mái kính tự động là hệ thống dùng kính cường lực, khung nhôm hoặc polycarbonate, vận hành nhờ motor kéo và thanh ray. Giếng trời thông minh tích hợp cảm biến mưa, gió, ánh sáng giúp đóng mở linh hoạt, bảo vệ không gian sống.
Tối ưu thông gió và ánh sáng tự nhiên cho công trình
Chức năng chính của mái kính giếng trời tự động là đón gió, lấy sáng tự nhiên. Cấu tạo thông minh giúp điều hòa không khí, giảm tiêu thụ năng lượng điện.
Nâng cao an toàn với hệ thống cảm biến Thông Minh (mưa, gió, ánh sáng)
Hệ thống cảm biến tự động đóng khi trời mưa, gió mạnh hoặc ánh sáng giảm, giữ an toàn tuyệt đối cho khách hàng.

Tăng giá trị thẩm mỹ và đẳng cấp cho kiến trúc xây dựng
Mái kính tự động nâng cao giá trị công trình, tạo điểm nhấn hiện đại cho nhà phố, biệt thự, văn phòng tại Hà Nội và thị trường Việt Nam.
Vận hành tiện lợi qua điều khiển từ xa, remote và app điện thoại
Khách hàng có thể điều khiển mái kính mở hất, mở lùa, xếp lớp bằng remote, nút bấm hoặc app điện thoại, dễ dàng và bền bỉ.

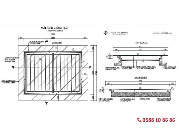
Cấu tạo chi tiết và Nguyên lý hoạt động của mái kính tự động
Để hiểu rõ hơn về các thành phần cốt lõi, mời bạn xem qua bài viết tổng quan về cấu tạo mái kính giếng trời nói chung. Cấu tạo và nguyên lý hoạt động của mái kính giếng trời tự động là nền tảng để hệ thống vận hành bền vững. Sắt Mỹ Thuật HD mang đến giải pháp rõ ràng, an toàn và hiệu quả, giúp công trình tại Việt Nam đạt giá trị sử dụng và thẩm mỹ cao.

Các vật liệu khung phổ biến: Khung nhôm siêu bền, Inox, Thép
Khung nhôm sơn tĩnh điện nhẹ và bền. Inox 304 chống gỉ, phù hợp không gian ngoài trời. Thép hộp gia cố chịu tải trọng lớn, tạo độ chắc chắn cho mái kính tự động.
Lựa chọn vật liệu lợp: Kính cường lực chịu lực hay Polycarbonate siêu nhẹ?
Đây là hai lựa chọn vật liệu phổ biến nhất. Để hiểu rõ hơn về đặc tính và độ an toàn, bạn có thể tham khảo bài viết chi tiết về mái kính cường lực. Kính cường lực dày 10–12mm chịu va đập tốt, tạo vẻ sang trọng, trong khi Polycarbonate lại nhẹ, cách nhiệt và chống tia UV, phù hợp cho các giếng trời thông minh cần tối ưu chi phí.
Trái tim của hệ thống: Động cơ Motor, motor kéo và thanh ray
Động cơ motor gắn kết với thanh ray giúp đóng mở mái kính mở hất, mở lùa, nâng hạ. Motor kéo được bảo vệ chống nước, vận hành ổn định, có bảo hành dài hạn.

Nguyên lý hoạt động: Cơ chế đóng mở được lập trình sẵn
Hệ thống vận hành nhờ tín hiệu điều khiển từ xa, remote hoặc app điện thoại. Khi cảm biến phát hiện mưa, gió mạnh, mái tự động đóng, giữ an toàn cho khách hàng và công trình.
Các phụ kiện đi kèm và vai trò của chúng
Phụ kiện gồm bản lề, gioăng kín khít, thanh dẫn hướng và nút bấm. Chúng bảo đảm hệ thống vận hành trơn tru, duy trì tuổi thọ mái kính, tối ưu hiệu quả thông gió và ánh sáng tự nhiên.

Phân loại 4 hệ mái kính tự động phổ biến nhất thị trường Việt Nam
Dưới đây là 4 hệ thống tự động phổ biến nhất. Nếu bạn muốn tìm hiểu tất cả các loại mái kính giếng trời hiện có trên thị trường, hãy tham khảo bài viết tổng hợp của chúng tôi. Việc phân loại mái kính giếng trời tự động sẽ giúp khách hàng, nhà thầu và kiến trúc sư chọn đúng giải pháp, đảm bảo an toàn, tối ưu chi phí và nâng cao giá trị kiến trúc tại Việt Nam.
Mái kính mở hất: Giải pháp tối ưu cho giếng trời nhỏ và cửa sổ
Mái kính mở hất vận hành bằng motor, đóng mở theo trục bản lề. Thiết kế này phù hợp cho giếng trời nhỏ, cửa sổ, nơi cần thông gió nhanh và che mưa kịp thời.



Mái kính mở lùa (trượt): Tiết kiệm không gian, vận hành êm ái
Hệ mái kính mở lùa dùng thanh ray, motor kéo, đóng mở ngang. Giải pháp này tiết kiệm diện tích, phù hợp sân thượng, mái hiên, và dễ lắp đặt tại nhà phố, biệt thự.


Mái kính xếp lớp: Thiết kế sang trọng cho lối đi sân thượng, không gian lớn
Mái kính xếp lớp gồm nhiều tấm kính cường lực hoặc polycarbonate, đóng mở tuần tự. Nó tạo hiệu ứng sang trọng, che chắn linh hoạt, thường dùng cho không gian lớn như sảnh, lối đi.



Mái kính nâng hạ: Phong cách độc đáo, linh hoạt theo phương thẳng đứng
Mái kính nâng hạ vận hành bằng cơ chế motor kéo, di chuyển thẳng đứng. Đây là lựa chọn độc đáo, đem lại sự linh hoạt cho giếng trời thông minh, quán cà phê, nhà hàng và công trình hiện đại.





Bạn đang phân vân giữa mái kính mở lùa, mở hất hay xếp lớp? Đừng lo, chuyên gia của chúng tôi sẽ giúp bạn! Hãy gọi ngay để được tư vấn miễn phí giải pháp phù hợp nhất với kiến trúc và ngân sách, đảm bảo công trình vừa thẩm mỹ vừa tiện nghi.
Báo giá lắp đặt mái kính giếng trời tự động mới nhất T8/2025
Báo giá mái kính giếng trời tự động phản ánh sự kết hợp giữa vật liệu, động cơ motor và hệ thống cảm biến. Sắt Mỹ Thuật HD cam kết mang đến cho khách hàng, nhà thầu và kiến trúc sư giải pháp tối ưu, rõ ràng và bền vững cho công trình tại Việt Nam.
Giá hoàn thiện sản phẩm phụ thuộc vào những yếu tố nào?
Giá thành phụ thuộc loại khung (nhôm, inox, thép), độ dày kính cường lực hay polycarbonate, động cơ motor kéo và phụ kiện. Ngoài ra, diện tích công trình và yêu cầu lắp đặt ảnh hưởng đến chi phí cuối cùng.
Bảng Đơn giá tham khảo: Giá Khung nhôm, Giá Kính cường lực
- Khung thép hộp sơn: 700.000 – 1.000.000 VNĐ/m²
- Khung inox: 1.000.000 – 1.500.000 VNĐ/m²
- Kính cường lực 10–12 mm: 650.000 – 750.000 VNĐ/m²
- Kính dán an toàn 11,52–13,52 mm: 1.150.000 – 1.300.000 VNĐ/m²
Báo giá trọn bộ động cơ Motor và hệ thống cảm biến thông minh
- Motor mở lùa: 9.000.000 – 25.000.000 VNĐ/bộ
- Motor mở hất, nâng hạ: 4.000.000 – 9.000.000 VNĐ/bộ
- Cảm biến mưa, gió, ánh sáng: tích hợp trong hệ thống thông minh, điều khiển bằng remote và app điện thoại.
Chi phí lắp đặt và chính sách bảo hành sản phẩm
Chi phí lắp đặt đã gồm nhân công và vận chuyển nội thành Hà Nội, chưa bao gồm VAT 10%. Sản phẩm được bảo hành động cơ motor và phụ kiện theo tiêu chuẩn, cam kết vận hành an toàn, ổn định cho khách hàng và công trình.
Để nhận báo giá mái kính giếng trời tự động chi tiết và chính xác nhất cho công trình của bạn, hãy kết nối ngay với Sắt Mỹ Thuật HD qua Zalo! Gửi yêu cầu, kích thước hoặc bản vẽ để nhận tư vấn và bảng dự toán chi phí nhanh chóng cùng ưu đãi hấp dẫn.
Sắt Mỹ Thuật HD – Lựa Chọn Uy Tín Cho Mái Kính Giếng Trời Tự Động
Khi lựa chọn Sắt Mỹ Thuật HD, quý khách không chỉ nhận được một sản phẩm chất lượng mà còn là sự an tâm và dịch vụ chuyên nghiệp. Với phương châm “Chất lượng tạo uy tín – Uy tín tạo thành công”, chúng tôi tự hào là đơn vị hàng đầu, chuyên kiến tạo những giải pháp mái kính giếng trời tự động đẳng cấp, an toàn và bền vững cho mọi công trình.
Thương hiệu uy tín với kinh nghiệm dày dặn
Là thương hiệu thuộc Công Ty TNHH Nội Thất Và Xây Dựng HD, uy tín của chúng tôi đã được khẳng định qua hơn 500 công trình lớn nhỏ. Kinh nghiệm thực chiến và sự minh bạch về pháp lý là bảo chứng vững chắc nhất cho niềm tin của khách hàng.

Đội ngũ kỹ thuật viên chuyên môn cao
Sức mạnh của Sắt Mỹ Thuật HD nằm ở đội ngũ kỹ sư thiết kế sáng tạo và đội ngũ kỹ thuật viên thi công lành nghề. Chúng tôi giám sát chặt chẽ mọi quy trình từ gia công tại xưởng đến lắp đặt tại hiện trường, đảm bảo độ chính xác và an toàn tuyệt đối.
Giá cả cạnh tranh cùng mẫu mã đa dạng
Nhờ sở hữu xưởng sản xuất hiện đại và quy trình làm việc tối ưu, chúng tôi tự tin mang đến các giải pháp mái kính đa dạng (mở lùa, mở hất, xếp lớp) với báo giá cạnh tranh nhất thị trường, giúp bạn tối ưu chi phí hiệu quả









